Aller au contenu principal

Vanne PE 1/4 de tour à boisseau sphérique électrosoudable PN16 - Fermeture sens horaire - Carré de 30

Code produit : 
21015R0
Prise en charge

Vanne 1/4 tour en PEHD à embouts mâles - FSH - Carré de 30 avec pastille aimantée.
Permet l'assemblage d'un accesoire ou d'un tube en PEHD à un tube en PEHD de diamètres égaux.
Sert à stopper le débit dans un réseau d'eau lorsque c'est nécessaire.
Idéale branchement d'eau à la suite d'une prise de branchement.
Disponible en PN 16 du d25 à 160 mm.

Les produits

Corps monobloc ne présentant aucun point de soudure.

Domaines d'application

Vannes PE pour les systèmes de canalisations en polyéthylène (PE) dans le domaine de l'alimentation en eau destinée à la consommation humaine, y compris le transport des eaux brutes avant traitement, et leurs assemblages avec des composants en PE et d’autres matériaux destinés à être utilisés sous pression et à une température de service de 20 °C comme température de référence, pouvant atteindre un maximum de 40° (au delà de 20°C, appliquer un coefficient de détimbrage).

Caractéristiques techniques

Matière
Corps : PEHD. Joints : NBR. Sphère : PPRV. Axe de manœuvre : PPRV, rondelle de détection : acier galvanisé.
Références normatives NF EN 12201-3 : Systèmes de canalisations en plastique pour l'alimentation en eau et pour les branchements et les collecteurs d'assainissement avec pression - Polyéthylène (PE) - Partie 3 : raccords
NF EN 681-1: Garnitures d'étanchéité en caoutchouc - Spécification des matériaux pour garnitures d'étanchéité pour joints de canalisations utilisées dans le domaine de l'eau et de l'évacuation. - Partie 1 : caoutchouc vulcanisé Certification
Attestation de Conformité Sanitaire (ACS)

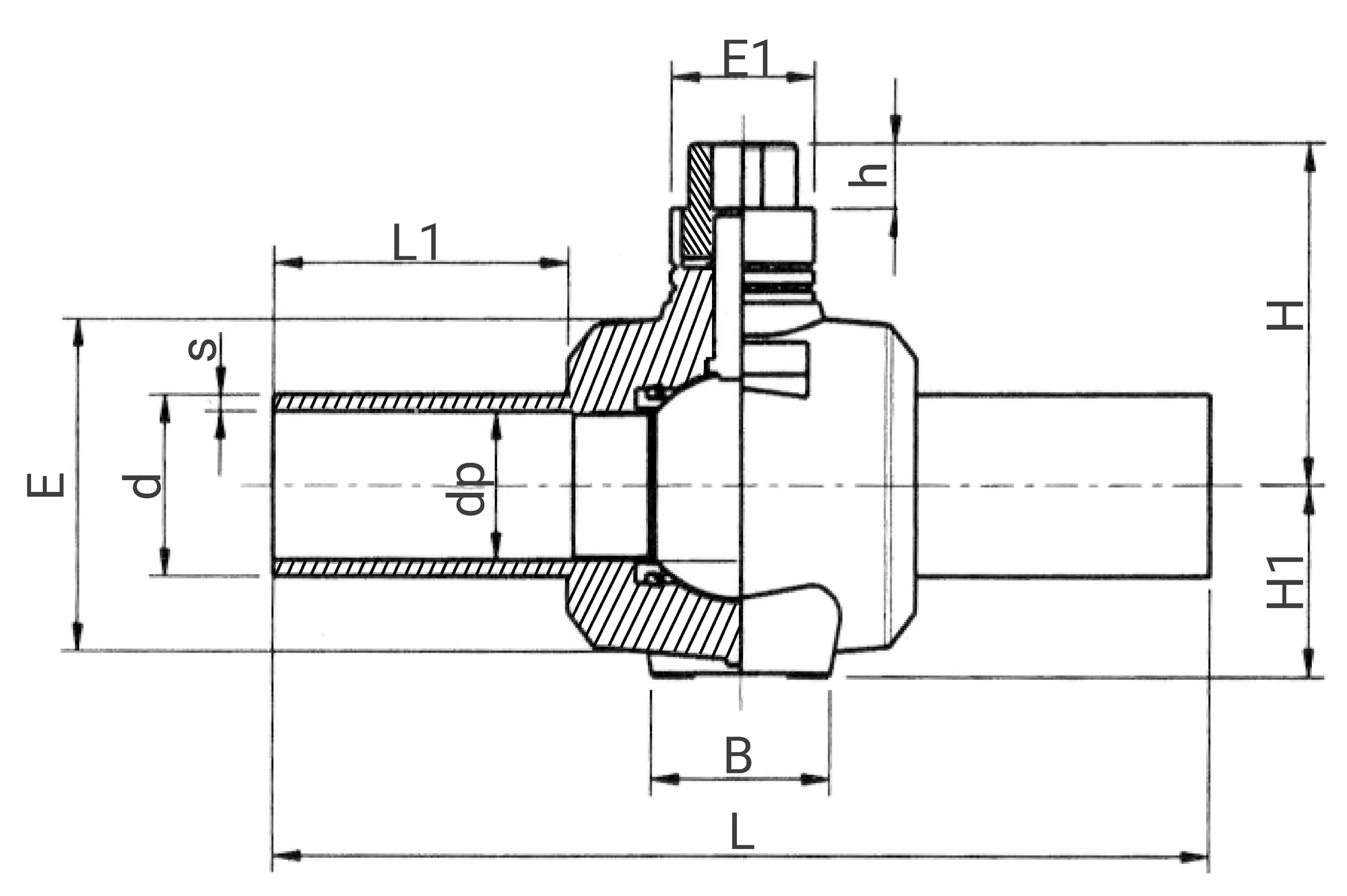
Références et dimensions

Références et dimensions de Vanne PE 1/4 de tour à boisseau sphérique électrosoudable PN16 - Fermeture sens horaire - Carré de 30
RéférencedLBEE1hHH1L1dpsPN à 20°CFiche tech.CAD
21015025 25 300 49 84 70 40 94 50 102 19 3 16 Télécharger Fiche tech. Télécharger CAD
21015032 32 299 49 84 70 40 94 50 100 24,4 3 16 Télécharger Fiche tech. Télécharger CAD
21015040 40 297 49 84 70 40 94 50 100 24,4 3,7 16 Télécharger Fiche tech. Télécharger CAD
21015050 50 425 86 120 84 40 160 80 126 39,4 4,6 16 Télécharger Fiche tech. Télécharger CAD
21015063 63 420 86 120 84 40 160 80 127 48,3 5,8 16 Télécharger Fiche tech. Télécharger CAD
21015075 75 420 86 120 84 40 160 80 126 48,3 6,8 16 Télécharger Fiche tech. Télécharger CAD
21015090 90 556 93 200 85 40 200 110 180 71 8,2 16 Télécharger Fiche tech. Télécharger CAD
21015110 110 560 93 200 85 40 200 110 180 84,2 10 16 Télécharger Fiche tech. Télécharger CAD
21015125 125 555 93 200 85 40 200 110 185 84,2 11,4 16 Télécharger Fiche tech. Télécharger CAD
21015160 160 550 93 200 85 40 200 110 190 84,2 14,6 16 Télécharger Fiche tech. Télécharger CAD
Schéma technique pour le produit :
schéma de la référence

Accessoires

Vidéos

Mise en œuvre de l'électrosoudage

Nos formations

Plasson France accompagne vos équipes dans l’apprentissage des bonnes pratiques de raccordement du PE.
Découvrir nos formations

Informations logistiques

Pièce Carton
Référence Larg. (mm) Prof. (mm) Haut. (mm) Poids (kg) Larg. (mm) Prof. (mm) Haut. (mm) Qté Poids (kg)
21015025 300 145 80 0,705 570 490 340 12 9,86
21015032 300 145 80 0,705 570 490 340 12 9,86
21015040 300 145 80 0,758 570 490 340 12 10,5
21015050 415 240 120 2,091 570 490 340 4 9,76
21015063 415 240 120 2,061 570 490 340 4 9,64
21015075 415 240 120 2,293 570 490 340 4 10,57
21015090 550 310 200 5,761 570 490 340 2 12,92
21015110 550 310 200 5,865 570 490 340 2 13,13
21015125 550 310 200 6,3 570 490 340 2 14
21015160 550 310 200 7 570 490 340 2 15,4